THE FRAME VILLA - VŨNG TÀU
Thi công
Cải tạo
Ẩn mình trên sườn đồi xanh mát nhìn ra biển Vũng Tàu, Cosiana Villa không chỉ là một căn biệt thự nghỉ dưỡng, mà là hành trình chuyển mình của một công trình cũ — từ một ngôi nhà gia đình thành một biểu tượng tinh gọn, thanh thoát và đầy cảm xúc.

Bối cảnh & bài toán đầu tư
Cosiana tọa lạc trên đồi Sứ – điểm cao nhất của Vũng Tàu, lưng tựa núi, mặt hướng biển. Một thế đất hiếm, nhưng cũng là thử thách: đường dốc hơn 30 độ, vận chuyển khó khăn, chi phí thi công cao.

Công trình ban đầu được xây dựng từ thập niên 1990, xuống cấp và thiếu công năng. Chủ đầu tư – một doanh nhân trong lĩnh vực lưu trú – muốn chuyển đổi biệt thự cũ thành villa nghỉ dưỡng cao cấp 20–30 khách, có hồ bơi, khu BBQ, phòng gym, sân vọng cảnh…
Yêu cầu đặt ra: hiệu quả vận hành, tối ưu công năng, nhưng vẫn giữ được cảm xúc và bản sắc cũ.

Hiện trạng ban đầu của Cosiana
Giải pháp thiết kế – Tinh gọn nhưng có hồn
Ngay trong khảo sát đầu tiên, chúng tôi nhận ra giá trị lớn nhất của công trình nằm ở hệ mái dốc cổ điển – đặc trưng của kiến trúc Vũng Tàu xưa. Nhưng chính cấu trúc ấy lại gây lãng phí không gian.
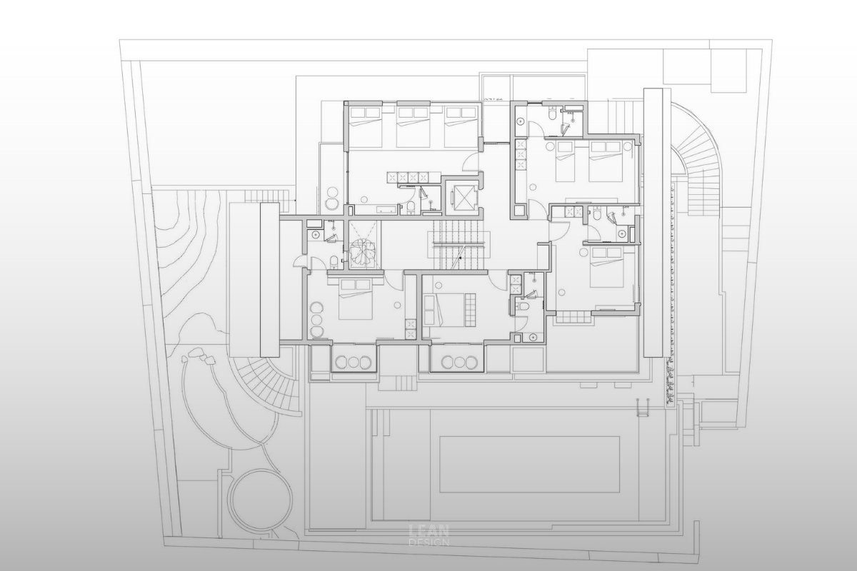
Giải pháp được đưa ra là giữ hồn – tái tạo thân: nâng mái 1,5m, mở rộng tầng áp mái thành phòng nghỉ và khu sinh hoạt chung. Số phòng tăng từ 7 lên 12, tất cả đều có ánh sáng và tầm nhìn tự nhiên.





Hồ bơi được di chuyển ra mặt tiền, nâng ngang tầng 2, tạo nên khối phụ vừa che nắng cho khu xe, vừa mở rộng không gian sinh hoạt. Thang máy được tích hợp khéo léo trong kết cấu cũ, giếng trời được mở rộng để lấy sáng và thông gió.
Mọi can thiệp đều dựa trên nguyên tắc: tối ưu vận hành – giảm chi phí bảo trì – tăng giá trị khai thác.



Song song đó, thang máy được cấy thêm khéo léo vào khung nhà cũ, giếng trời mở rộng để đón sáng và gió, giúp công trình trở nên thoáng đãng, tiện nghi mà vẫn giữ được tinh thần nguyên bản.
Hòa trong cảnh quan – Để thiên nhiên lên tiếng
Thay vì thêm thắt, chúng tôi chọn “bớt đi”.
Cảnh quan quanh đồi vốn đã đẹp – chỉ cần được dẫn dắt có chủ đích. Các lối đi được điều chỉnh để tôn địa hình tự nhiên, cây sứ được giữ lại như ký ức của khu đồi, và những khoảng trống được tính toán để gió, nắng và tầm nhìn xuyên suốt qua từng không gian.
Cosiana không cố gắng nổi bật – nó chỉ hòa vào, và nhờ thế mà hiện diện một cách tự nhiên nhất.

Hành trình thi công – Đồng hành đến cùng
Độ dốc địa hình và giai đoạn thi công giữa mùa dịch khiến mọi thứ khó khăn hơn dự tính. Nhưng cũng chính trong thử thách đó, tinh thần đồng hành giữa chủ đầu tư – kiến trúc sư – nhà thầu được gắn kết mạnh hơn.

Mỗi chi tiết – từ mối nối kết cấu đến đường ron gạch – đều được xử lý thủ công, chuẩn xác. Không chỉ để đẹp, mà để vận hành bền và dễ bảo trì.

Kết quả – Một không gian “đủ”
Cosiana Villa giờ đây hiện lên tinh giản, trắng trong giữa đồi sứ.
Không gian bên trong tiết chế, để thiên nhiên bước vào. Hồ bơi, ánh sáng, gió biển – tất cả được kết nối liền mạch, tạo nên cảm giác nghỉ ngơi đúng nghĩa.

Đó không chỉ là một dự án cải tạo, mà là hành trình tái sinh – nơi quá khứ và hiện tại cùng tồn tại trong trật tự mới: hiệu quả, có hồn và bền vững.

Thông tin dự án
Chủ trì thiết kế: Đào Thanh Hải, Hoàng Văn Kiên
Nhóm thực hiện: Lữ Hữu Vinh, Quách Tâm, Nguyễn Tuyến, Nguyễn Duy Gia Trí, Quỳnh Như
Đối tác nhà thầu: Nguyên Phát
Đối tác nội thất: Huỳnh Gia Mộc
Đối tác cung cấp: Alis (chiếu sáng), Maika (gạch)

Cosiana Villa không chỉ là một dự án cải tạo — mà là hành trình hồi sinh một không gian từng lặng im, để quá khứ và hiện tại cùng hòa nhịp trong hơi thở mới.
Chúng tôi tin rằng, vẻ đẹp của kiến trúc không nằm ở đường nét hay vật liệu, mà ở cảm xúc mà nó đánh thức – khi con người thật sự cảm nhận được sự bình yên trong nơi mình thuộc về.

Và có lẽ, điều khiến chúng tôi tự hào nhất không phải là dáng vẻ tinh tế của công trình, mà là khoảnh khắc chủ đầu tư đứng lặng trên sân thượng, giữa gió và hương sứ, khẽ nói: “Cuối cùng, tôi đã có một nơi để thở.”
Lorem Ipsum
Lorem Ipsum is simply dummy text of the printing and typesetting industry. Lorem Ipsum has been the industry's standard dummy text ever since the 1500s, when an unknown printer took a galley of type and scrambled it to make a type specimen book.
